🛏 𝗕𝗲𝗱: 4 | 🛁 𝗕𝗮𝘁𝗵: 3 | 🚘 𝗦𝗽𝗮𝗰𝗲𝘀: 3
3d tour
(please click anywhere on the picture below to activate the 3D Tour)
VIDEOWALKTHROUGH
(please click anywhere on the picture below to activate the walk-through)
Gallery
PROPERTY DETAILS
4 BEDS
3 BATHS
3 PARKING
APPROX. —- FT²
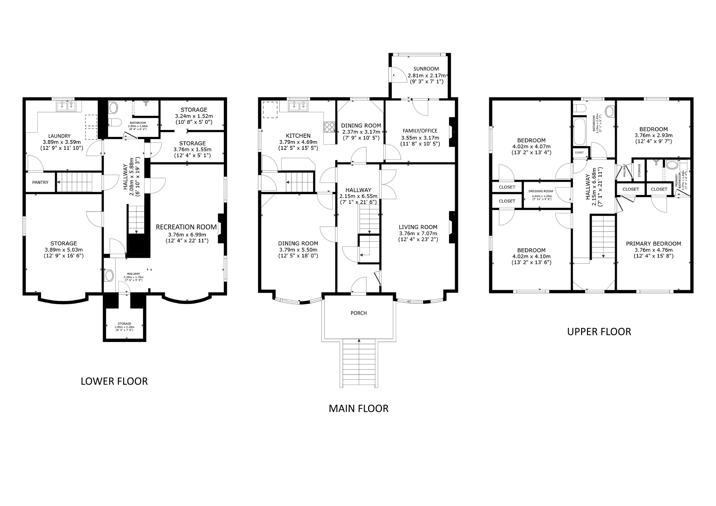
FLOORPLANS
